Home
Projekte
Büro
Aktuell
Jobs
Kontakt
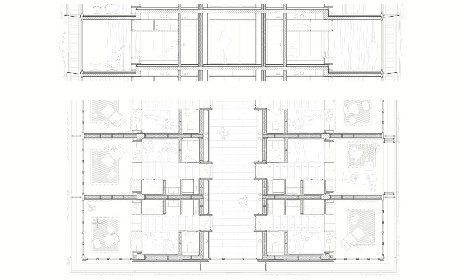
000 Hotel Weggis
Beschrieb
Publiziert HSLU
000 Stadthalle Hamburg